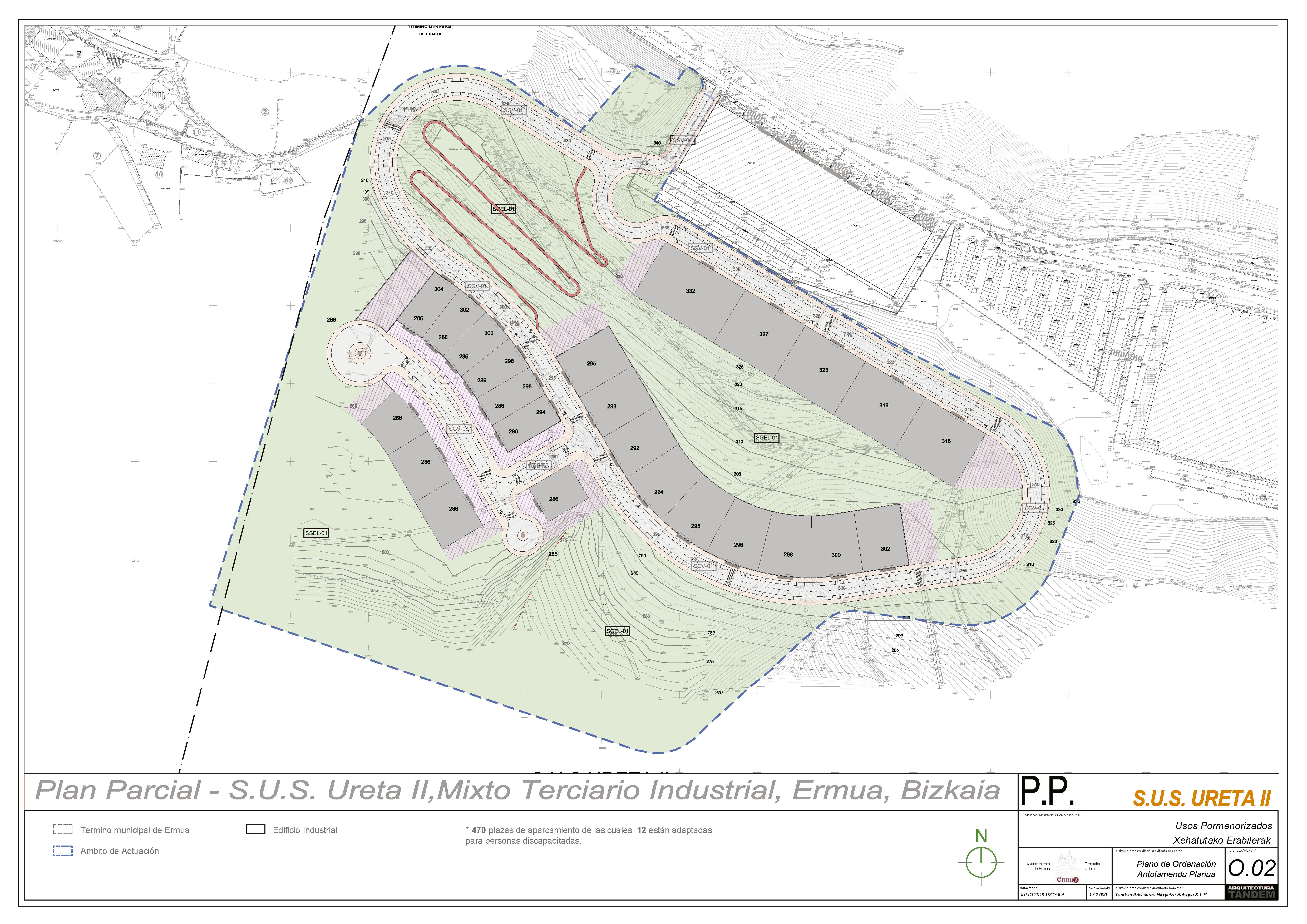
Ermua tendrá suelo industrial en Ureta II para futuras necesidades o ampliaciones

Ortofoto que marca el espacio reservado

El pleno de la Corporación aprobó definitivamente el martes el Plan Parcial del sector industrial de Ureta II, dentro del PGOU vigente, promovido por el ayuntamiento. La decisión posibilitará que el municipio disponga de casi 150 mil metros cuadrados en el monte Ureta (alto de Areitio). Suelo destinado a acoger nuevas empresas o a atender las necesidades de crecimiento o ampliación de las existentes.